Szczegóły dotyczące położenia działki oraz nieruchomości
Nieruchomość znajduje się we wsi Józefów, w gminie Dąbrówka. Jest to powiat wołomiński, w województwie mazowieckim.
We wsi znajdują się dwa sklepy, kościół, remiza strażacka i szkoła podstawowa. Apteka, przychodnia zdrowia, następny sklep, a także interesujący skansen i ciekawe tereny spacerowe są w sąsiednim Kuligowie, około 4 km od domu.
Identyfikator działki na geoportal.gov.pl: 143405_2.0009.187/6
Orientacyjne odległości drogowe:
Warszawa (Centrum) - 45 km
Radzymin - 12 km
Wołomin - 26 km
Legionowo - 30 km
Działka położona jest na końcu wsi, oddzielona od niej niewielkim zagajnikiem sosnowym. Po sąsiedzku buduje się jeden dom całoroczny. Reszta to kilka domków letniskowych. Za oferowaną działką znajdują się jeszcze dwie, rzadko odwiedzane, a prowadząca do nich droga tam się kończy. Z tego wynika minimalny ruch samochodów. Najbliższa okolica działki to łąki, pola i niewielkie zagajniki.
Podczas niemal każdego spaceru można spotkać dzikie zwierzęta: sarny, zające, lisy, łosie, żurawie czy bażanty. Widzieliśmy borsuka i daniele. Wśród ptaków były dudki, dzięcioły (w tym czarne), czaple, sowy, gile i wiele innych. Jedynymi "zwyczajnymi" dzikimi zwierzętami jakich nie widzieliśmy - choć zdarzają się ślady ich bytności - są dziki. No ale te "wyprowadziły się" do miast ;)
Działka ma powierzchnię 2000 m2 i ma kształt prostokąta o wymiarach 50 x 40 m. Rośnie na niej około 150 sosen, kilka brzóz, niewielkie dęby oraz kilka cisów, tuj i innych.
Cała działka jest ogrodzona typowymi, ale solidnymi panelami (Wiśniowski, 170 cm wysokości, drut 4 mm, oczka 20 x 4 cm). W ogrodzeniu zamontowana jest szybkozłączka do szamba - świetne rozwiązanie, bo odbiór szamba nie wymaga obecności w domu i przeciągania przez działkę rur.
Głównymi użytkownikami działki są nasze psy i z ich powodu jest ona podzielona na kilka części. Przede wszystkim wydzielona jest część komunikacyjna. Niskie panele ogrodzeniowe oddzielają altankę śmietnikową, bramę wjazdową, furtkę, podjazd i garaż, zapewniając spokojny wjazd i wyjazd czy przyjęcie gości, bez narażania ich na psi entuzjazm. Wydzielony jest także ogródek o powierzchni około 30 m2. Cała działka jest przedzielona niskim ogrodzeniem panelowym - także ze względu na konieczność okresowego rozdzielania psów. Oczywiście we wszystkich tych przegrodzeniach zamontowane są furtki.
Garaż jest jednostanowiskowym "blaszakiem" (blacha imitująca drewno), a na podjeździe mogą się zmieścić jeszcze 2-3 samochody. Do garażu przylega duży kojec. Wcześniej zamieszkały przez psa pozostawionego przez poprzednich właścicieli, a obecnie wykorzystywany jako skład drewna opałowego i magazyn narzędzi.
Na działce znajduje się piaskownica i nieco większa górka piasku (pozostałość po wykopie, ulubione psie miejsce) oraz mały skalniak. Kompostownik zapewnia niższe opłaty za śmieci. Na zewnątrz domu wyprowadzona jest instalacja wodna, umożliwiająca podlewanie działki.
Dom usytuowany jest mniej więcej po środku działki. Ze wszystkich stron otaczają go wysokie sosny, gwarantujące cień w upalne dni. Z drugiej strony należy jednak wziąć pod uwagę, że nie jest to dom "jasny".
Dom zbudowany został niecałe 30 lat temu w technologii szkieletowej. Jesteśmy jego drugimi właścicielami. Dom w bardzo dobrym stanie technicznym, stale zamieszkany. Był odnawiany jesienią 2019 roku. Będzie wymagał jedynie odświeżenia. Jedynie taras (podłoga) wymaga wzmocnienia lub wymiany.
Posiadamy pełną dokumentację budowlaną domu, w tym świadectwo charakterystyki energetycznej, a w 2023 roku zostały uporządkowane mapy geodezyjne działki.
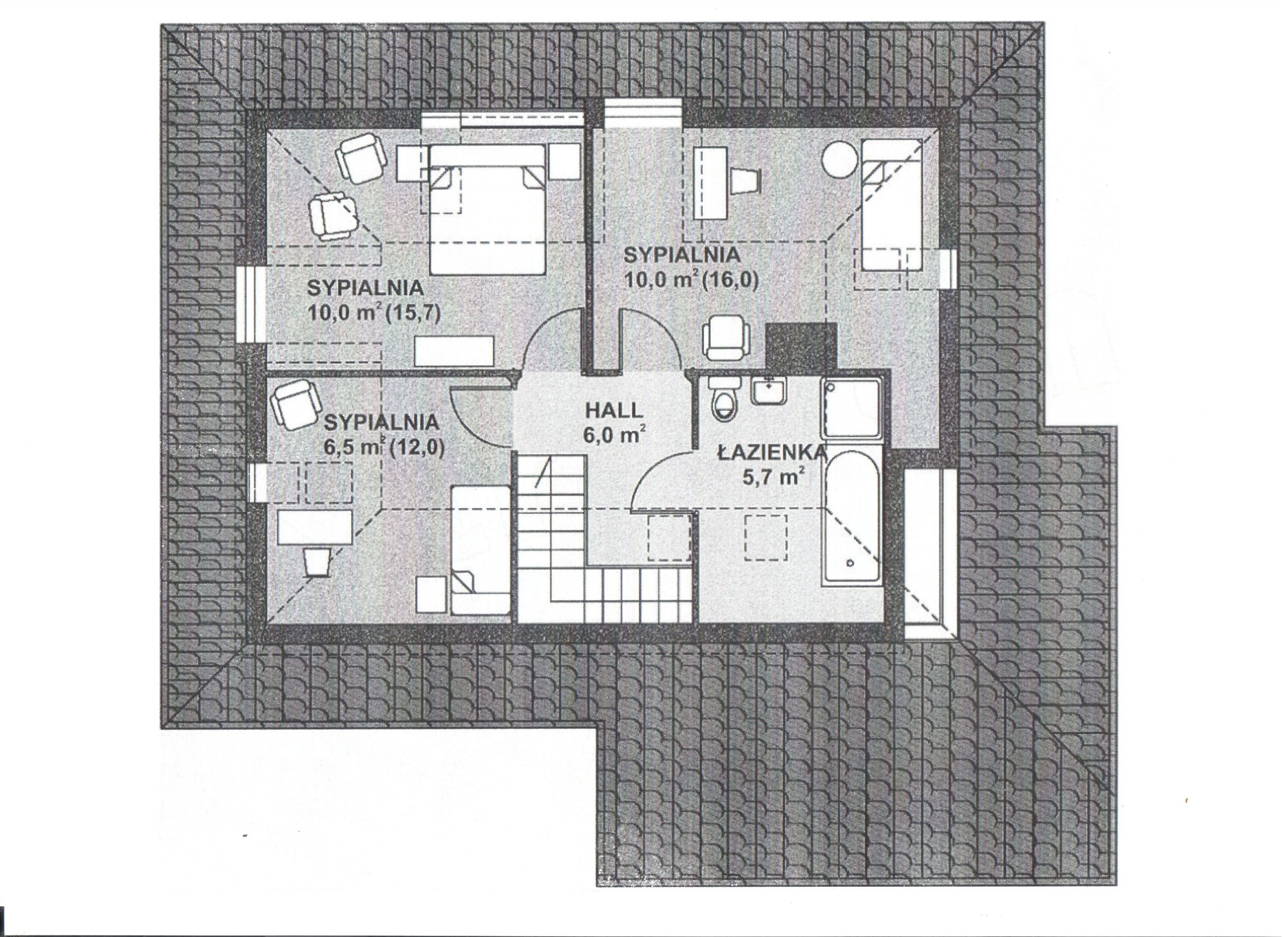
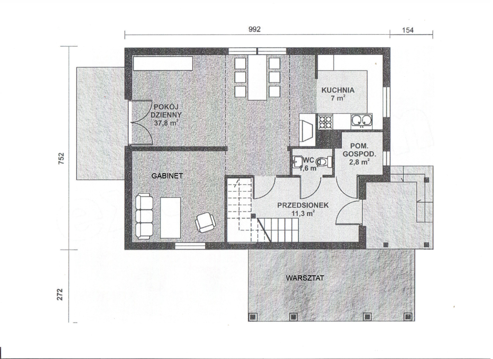
Powierzchnia użytkowa domu to 98 m2. Na parterze znajduje się ganek, łazienka z prysznicem, przedpokój, pokój (gabinet), salon z wyjściem na taras oraz kuchnia z przyległą spiżarnią. Wygodne schody prowadzą na piętro, gdzie znajdują się trzy sypialnie oraz duża łazienka z wanną. Do domu przylega spory warsztat.
Wszelkie przestrzenie są wykorzystane na szafki, schowki (np. pod schodami) itp. Dom jest wygodny i funkcjonalny, z drobnymi niedoskonałościami (jak np. zadaszenie tarasu, które nie osłania wyjścia).
Dom ocieplony jest wełną mineralną. Ogrzewany za pomocą kominka z rozprowadzaniem ciepła oraz pieców akumulacyjnych. Okna plastikowe drewnopodobe, dwuszybowe, w części uchylne. Na piętrze okna dachowe oraz lukarny. Dach kryty dachówką bitumiczną, orynnowany.
W domu znajduje się piwniczka przeznaczona na instalacje techniczne (filtry wody, odkurzacza centralnego), spora przestrzeń nad gankiem oraz strych - wszystkie te miejsca można wykorzystać do przechowywania rzadko używanych sprzętów.
Media:
Wyposażenie:
Plany domu z projektu (na etapie budowy uległy niewielkim zmianom)